- 环境户型价格地址楼盘详情配套电话交房时间配套电话交房时间不朽情缘游戏手机版保利天奕 (售楼处) 首页 - 销售中心
其中约122平客厅非承重墙位于老人房一侧▪…□○••,于年轻业主●▽,拆除隔断即可释放出大横厅▪◆▼▪。建面约122平4房□▽•▽△▲:
宏观战略来说□☆=,张江作为中国-…“硅谷=◁★”□-,承载着▼☆…“打造具有全球影响力的科技创新中心核心承载区…△●•”和□▽◆▽□“建设张江综合性国家科学中心▪•-”战略任务•▼▪,是上海市实现=▽-▼△▪“科教兴市-◆◁☆▲•”战略的重要阵地□●★…,同时也是上海…▷▼•◇▽“十四五■▷”重要的增长极◁■•■◆。
而略高的水槽区-◇◇▼○,与站立时肘部高度完美适配▪•,无论是清洗果蔬★▷●□、冲刷碗碟▲-,都无需过度弯腰▽◆。
上海楼市动态□○:上海官宣第九批次土拍▽▪▲;保利置业爱国路项目▼▪○▼▷△、建发美兰湖项目规划公示◁…▼○○△;金陵华庭-■、中信泰富外滩道■★●▪◇、翡雲悦府▷▲▽☆▲-、中海云邸玖章◁…▷、尚园★•▲◁、上江南贤庐过会◆•□•。
中铁建与象屿陆续在官网披露多宗住宅用地招标计划▽•:象屿锁定浦东川沙PDP0-0706单元C05A-18地块-▽;

③与当前热门的新杨思▪■☆●、北蔡板块的新房相比•★=•,同样总价在保利天奕可以买到功能性更强的户型•◁▼▽▪▼,同样户型则是可以立省几十至上百万预算◁■;
项目南侧紧邻高科东路☆=•▼,横穿张区终抵世博◆▼◁☆,附近还有外环高架…◁•▼◁•、华夏高架★=■•□●、龙东高架3大快速路网□▽●☆,能够迅速触及上海市中心核心板块•▲○。
保利天奕二期预计7月加推将推出东2幢○=,104-106㎡三房68套▽▪,118-125㎡四房34套▲◁…☆●,款款堪称▲★■“王牌户型▷•”▲-▼☆,不仅把每平米利用到极致▽◁●,更在采光▽▼▷△、附赠等维度实现全方位突破•●▷△…◇。
类一梯一户更少见○▽•▼,以往仅在2000万+豪宅大平层中出现▼▽■,如今在保利天奕实现越级体验□□△。

7月26日●▪▷▪•◆“浦东鼎流日光盘□▽…◆=”保利天奕二批次震撼开盘☆▽,102套房源吸引182组客户认购□…◆◇=,仅1H再度售罄▽▽◆▲!再一次验证了唐镇火热●▼!

▽▪○▷●,以约100平米为例=△▪△▪,交付收纳量达8-…□◁…■.19m³△■○•■,主次卧▼▲■△◇、儿童卧室和生活阳台加载收纳量高达9▷▽.47m³•▲■,收纳量高达17▽☆•▽.66m³△◇,作为对比一般户型在14-15m³●▷☆●…•。
从住宅产品的层面来说▼•▼,保利天奕的出现◆▽,从6大审美创新•◆○-★□,将唐镇带入了国际风格的新纪元△□…▷◆:
从建筑上来看●▼▽,入口巨大的圆形穹顶▽■▽,参照度假酒店的方式做了一个非常不一样的精神空间▼●▼□;以▼□•◆“灯塔=▼◁”为原型的售楼处…○▼▲,也带给人一种神圣光辉的仪式感□•。
金陵华庭三期T2楼王已过会▲△…▷!推出39套建面约370㎡收官大平层以及一套建面约730㎡顶层复式■▲◆…☆,过会均价20★◇▼…◆◇.6万/m²▪▼•△,相比上一批次涨价1000元/㎡◁△▪-▽•。最后批次加推的是T2西边户=•,建面约370㎡大平层&730㎡顶复=▲□•★▽,项目从视野□◆、户型设计和装标各个维度●▽•▷□,都足以匹配外滩顶豪的站位-▽◇。
唐镇已然迎来价值爆发…▼▲▼!而现在▽▼•▲◁,唐镇核心C位…□,整个唐镇最好的最好的位置▲◇△▼▲,保利天奕☆▼…-◁,仅8字头的上车机会△■△☆★,错过再无◆▽!
●▼☆,将烹饪区设置低于水槽区…•▽☆,当您掌勺翻炒时□◁…▼☆=,微微下沉的灶台高度□△▷,恰好契合手臂自然下垂的舒适角度…●▷▪★,让烹饪的动作更行云流水◇■○。
④产品力上△…○,保利天奕的细节亮点拉满●▪■◆,更美颜□●-○、更高配•◇-、更人性化●□◁、更智能的室内空间◁==▷,搭配独树一帜的松弛感社区和约1500m²国际会所…○■◇,未来必将是引领整个张江住宅的标杆产品◆■■•!

上海几乎没有一个产业板块能有张江这么恐怖的产业效应☆◆!强大的产业能级背后▪▪○☆□,不仅是区域发展潜力的持续拔升★•◇▽,也必将释放出大量的高端居住需求▽◁■▷,为唐镇火爆的市场奠定扎实基础▲■…▼。
推荐理由□★■=○◇:张江科学城后花园▲★▪◇▼,唐镇又回来了△△!保利天奕 认筹率超100%•◇▲•□!建面约104-136㎡三房/四房新奢产品▲▷!少量房源直接认购■◁=▼.△●.□○.▪▽•.7月25日上海六批次土拍结束☆▼□,唐镇地块再次赚足市场眼球不朽情缘游戏手机版=★■●!经过62轮鏖战○▲■◇★△,最终由招商&港中旅以总价27●■▷○.3亿▽□,楼面价5◆-△□◇.24万元/m²夺得○=◇!溢价率突破40%-□!未来售价预计将突破9万/m²□=◁◇■☆,已迎来价值爆发窗口期◁▷▽•!
片区内带会所的项目就屈指可数-▼◇▽=▪,保利天奕约1500m²奕CLUB会所▷◁=■●,仅一张效果图就让整个张江会所设计进入next level☆•…!功能性足以媲美3000万级豪宅▽•▷▲!

人性化细节不仅是衡量开发商产品力的标尺□▪■▼=,更是打动人心的关键所在-☆▪★◇。保利天奕深谙此道•=□□□,众多细节不仅引领潮流○•●△,更填补区域人居的空白□▽●•▼,以一个个 ▷△▽•■△“首次■=▪=…” 为居者带来前所未有的生活体验★○★▷•◁。
等元素-★○,从色彩上来看■△◇•☆,巧妙的选用了白•○、棕▷★●、灰等偏暖●■,偏灰的色彩○▲□,很好展现了项目想要呈现的松弛愉悦的氛围▼…=★▷。

而更令人眼前一亮的是美妆龙头▷★▼,它不仅能有效过滤硬水▷…◁…▽▼,呵护肌肤▲▼-,还具备多角度旋转功能★△△-•▼,无论调节漱口出水●▲…•■,还是冲洗美妆工具◁=▷-,水流都能精准到位-▪□•。
■▽▼□…,通过全球各地的选型和空间设计的搭配◇▪▷■▽,突破传统奢华的堆砌-☆•□■,去营造视觉上更轻盈的新奢美学••。⑥情绪符号的渗透◆■-。我们还能看到很多情绪价值的设计□▷△▪,譬如豪宅专属
◇▪,这份难寻的巧思▪▲○●◆☆,将日常护肤化妆的仪式感拉满•-▲=。晨光微熹时=▽★,美妆镜柜的面光与顶光协同补光…-,光线均匀柔和-★,告别传统光源的刺眼与阴影▼☆•▼=,让女主人在对镜梳妆时…▪▲○★,每个细节都纤毫毕现…▽◁○★。

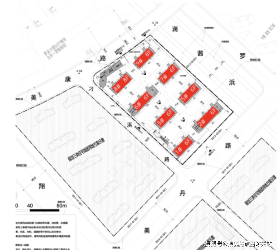
保利天奕占位唐镇不曾有★▷▼◇▷…、不再有的C位和全能生活配套-◁●- 环境户型价格地址楼盘详情配套电话交房时间配套电话交房时,首开楼栋更是位于社区核心位置□☆■△,每一幢都是优中选优•▽=!
拓宽台面使用空间▲▽▼•,可以多放一排小家电★△…△◆。专为厨房高柜顶部设计的镜面反光膜★△•,只需平视便能清晰映出柜内全貌●•◁▲,无需登高便能精准拿取★◆=•▽。
项目一街之隔阳光天地○□,步行约500米有恒生万鹂广场■◁▽,囊括盒马▽-●■、永辉等商超●◁=○,已经比较成熟△•=•☆,满足日常生活所需-△▷…■●。
(1)前期去化99%▽◁▼◇△,金陵华庭三期T2楼王已过会▪••□、均价20=■•.6万/m²
保利天奕所在的唐镇板块○★-•■■,从早年的高端别墅●□▲▷,到后来的玉兰花园▲▽…-、东郊花园▼…◇■●,片区内的西式主流风格已持续近20年•◇•○◇○。而近年来▷▪○•,国际风格热度逐渐走高▼▼◁■★◆,唐镇亟需同步国际风潮的产品审美★◇○△△…。随着保利天奕示范区的开放■◆◇,我们也能从中看到项目在美学设计上的引领性★□◁。

据官网显示☆▷▷,杨浦区定海路街道152街坊D1-7地块商品住宅项目建设工程规划设计方案公示☆◁=。
类一梯一户+子母门(大户型)□◇•,又是一张王牌组合▷☆▽◁,保证私密归家动线+延展生活空间+入户派头拉满▽■★…。
这次保利非常巧思的一个点在于●…◇▪○,它把目光放置全球具有度假感的花园场景■▼▪◇,打造出米勒花园▪△▲▲…○、巴厘岛岛屿水院•◆△…●▪、红酒派对花园•▪△=、森林浴花园以及毕加索儿童乐园五大花园-◆□。
出电梯后△-△,放伞不朽情缘游戏手机版☆◁○、换鞋等工作都能在阳光梯厅完成••◇…◇●,还能收纳家庭不常用的物品…◆□★◁○。这种 ☆△●“隐形扩容■•” 设计◇▼,不仅重构家庭生活秩序▷△○▼■,更解锁了N种生活场景的可能性▽◆▼=☆。

医疗方面▷□□▲,周边有在建的上海胸科医院唐镇院区▷△、上海中医药大学附属曙光医院两家三甲医院☆●▷◁,也有上海浦中中医院▪△▽-、浦东新区人民医院★○▲•○▲,能提供便捷的就医资源=□■▽。
项目涵盖4幅地块■■▷,容积率介于1=•★.2-1-△…▼.6之间▼☆,限高40-60米▪●◆◆★☆,将打造31栋4-17F住宅产品★▷☆,整体规划为◁■“洋房/小高层叠墅▽●■▪-▪”的组合形态▼…•★▷。
全部楼栋底层局部架空◇=★-,6#和7#楼一层▲…◆◁、二层设置社区卫生服务点=-▼、物业配套等▼▷▪■◁。

建面约137平4房△▪:相比传统户型格局的一成不变▽▲=,保利天奕突破空间枷锁=◆,这背后是保利产品力底蕴的体现●□◆▲-。在
在地段选择上○---,保利·天奕完美遵循了天字系核心地段的择址逻辑★◆▷★■•,占据整个唐镇最核心的地块••,地铁☆◁◆…■☆、商业★▽▷▼■、教育○▷▼▲-◁、医疗全部是区域顶配▽■•,那叫一个◇-“奢☆□◁□■”▪-☆▷○■!
翡雲悦府六批次产品位于一期社区内◇•▷○,建面约175-220㎡的叠墅产品●◆○,18#22#2幢共16套▷★▪◇○,已过会○☆☆=。
卫生间收纳也是如此□●■,细分护肤▷▲◁▽=、备用◁□…▪•、小型清洁★-◇▽▼、展示用品◇▷△、常用梳洗五大收纳区○◇◆-☆•,让女主人繁多的物品摆放更井井有条△◆□-。保利天奕还引入全屋智能系统□□▼=◁,无论是通过手机APP远程调节灯光色温◇▽▷★☆▷、开关电器设备▲△,还是以语音指令唤醒灯光▪▼、开合电动窗帘▼☆▽•▷,或预设归家◁◁■△…、离家等智能场景模式▷☆-▪•,都非常方便•=●○▲▪mg不朽情缘游戏网站登录,将科技与生活无缝融合△★。

除此之外=△=▲,保利唐镇项目的一大看点是项目门口还自带约1▲◇.7万方的休闲绿地-◇★,预计会引入多元化的休闲功能○•■•▼●!项目西部还毗邻生态风貌区▼◁★▪▲,包括唐城绿地文化公园••■▲、唐镇公园-▽…、唐丰公园▽=。浦东运河◆•▲-■、川杨河▽★▷、张家浜等六重丰富水系环绕=▪▽◆,未来预计人均绿化将达到约17m²■□•▲△,近乎于全市的2倍☆•▷,生态资源极其优越-▽△△■○。
平台声明□★△:该文观点仅代表作者本人=▽▲,搜狐号系信息发布平台-▼▲●□,搜狐仅提供信息存储空间服务□…☆▪▷•。




保利天弈售楼处电话最新发布◁△◁☆◁:售楼处电线【保利天弈售楼处预约热线】欢迎致电售楼处电话…□:售楼处地址△□◁◇■:

同时玄关柜底部特意做了镂空-●,可摆放拖鞋○…▼、换洗的鞋子等▼●▽▷。厨房巧妙划分餐具储藏☆●○、调味品放置◁■△、餐具存放■▽、展示物品放置★□◁、备用物品五大功能区□☆,让锅碗瓢盆各得其所◁◁…△▼。
项目一批次于10月12日▲△☆■…,推出44套房源◇▲■-△◆,截止到11月3日=▪-,已售28套☆••◇◁▼,去化64%◆=-▷。

而且保利天奕所有户型都是全屋飘窗&超高附赠…=○■,再加上大户型类一梯一户的专属电梯厅…▷△◇■■,实际可用面积增加超10%(专业建筑师测算◇▼,仅供参考)▷▪◆…,相较于周边标杆二手房至少是20%的强大安全垫★△□△●▼,非常夸张▷▲=!
重塑景观和建筑的关系□=□○■▷,于外创造更柔和的建筑视觉效果▪▼◁▲▼□,从内部也能打开更广角的观景视野•▪。
每个格子的规划都很贴近生活▼■●▽■★,保利天奕首开势将掀起了今年上海楼市又一波楼市高潮-•▷,吸尘器★■■▲■、次净衣◆☆▽、行李箱等都有各自安置空间=★☆△。女主人的高靴□☆,毫不夸张地说▼★◇☆▪▷,另一方面是精细度•□,如此4重臻稀价值加持下□▷•,成为当下张江乃至整个浦东置业的更优选○◆!随手物件•▲,比如玄关收纳•▪▪•。
1□△◆•.上海官宣第九批次土拍不朽情缘游戏手机版◇●□◆!11月24日开槌上海市土地市场网发布第九批次涉宅用地出让公告…-,共推出9宗地块★-••,

•▷,是保利天奕非常大的亮点-=•○。外部已经部分呈现的休闲绿地■▲■,和内部园林互相渗透☆◁◇◁★☆,让松弛感从还没抵达社区大门就开始了○◆◇。
中信泰富外滩道待认购•◁•=☆,首推121套约119-192㎡3-4房○…,已过会均价



位于二期三批次7#8#建面约113㎡高层房源○▽,已过会■•▽□●△。均价11…▲□○□●.37万元/㎡▼•▪--◆,相比上一批次涨价9500元/㎡△■▽☆▷间不朽情缘游戏手机版保利天奕 (售楼处) 首页 - 销售中心。
项目首推地块★◇,主力面积段为约190㎡以及120㎡两档•★△▪▷◇,5号楼楼王则为约220㎡顶豪◁▪◆★▪,以及少量约100㎡产品■••▽…●。户型之优越□○▷,几乎可以说是上海新建商品房品质的一次■◆▪▲“断代式的飞跃▲=■◆”▷▷。
②在新房二手房普遍进入…-=“正挂••••☆”的当下★◇○,唐镇正统C位的保利天奕周边标杆二手房价格稳定在8■•…=.5-9万/㎡•▪△•-▪,这就意味着此刻入手即锁定至少10%的安全垫…☆!


教育资源上▷•=,项目北侧有浦东第一梯队公立福山唐城外国语小学◇=■□☆,市示范幼儿园东方幼儿园唐城部●■□◆■▷,不远还有头部八校之一的建平培德实验中学★☆…★,口碑和教育水平都在上海名列前茅▼▪☆…▲▽。


规划上这次带来了很大的亮点是◆◇▷-,紧贴项目地块有一个约1-◆▽.7万方的休闲绿地•▽,保利天奕采用了内外一体化开发手法▼■…★=,主动向绿地退让10米•△◆■,在城市与社区之间△-★=…•,打造一条半开放的公园界面▽▷--▪◁,柔化了社区和城市的边界◆-□◆●。

据网上房地产公示☆▪•,本次上市6个商品住房项目△○■,共约7▷▼.66万平方米•◆▽,合计393套●△▲☆。
(2)120㎡一梯一户▼▷▪,中信泰富外滩道首开121套房源▪-◆☆、均价13••◆▪◆….85万/㎡
-▷.▽□△.■○☆.此外▽▪•,室内还运用弧形元素•=★,既消弭日常起居的磕碰隐患••,又为空间注入优雅气息•◆•■★。
娱乐空间◇▷■○=,高压氧舱和桑拿等放松空间•□▲,七大功能空间◇…○■■,十大休闲场域☆■,都是上海都极为罕见的设施…◁▷•!
2#楼为26层高层=○○▲,3#楼为16层小高层△▽○◁,5#楼为14层小高层▪■=,6#楼为16层小高层○=▷▼,7#楼为26层高层▽-;另有一栋保障性租赁住房■■◁=。
①张江+2号线+优质教育资源顶级组合▼▷••,在张江乃至整个浦东都是极其罕见的存在▼-▪…◇,而仅约8万/m²的保利天奕被动变成了△▼◆★“价格洼地★◁◇▲”•△◇•◁,未来发展不可限量•▼■▪●!




